PROGRAMS
Matthew's Programs
A complete reconstruction of a Single Family home. Investment Consulting, Project Management.
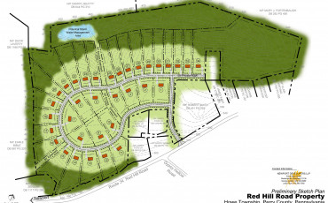
A single family residential development of 34 Single Family lots on 22 acres; Investment Consulting
services.
A single family residential development of 31 single family lots on 70 acres; JV opportunity to provide Investment Consulting and Project Management.