Greensburg Estates, Martinsburg, WV
31 single family lots over 70 acres; Investment, Partnering, Management.
Highlights: Development completed in 2020
- Plans for approval for single family detached lots
- Each Lot is cleared, graded and delivered to owner to construct their custom home
- Opportunity for remarkable access to amenities and shopping and country lifestyle



Allentown Estates, Prince George’s County, MD
6 acre lot with 20 Single Family Residential lots; Partnering (Planning and Engineering), Management.
Highlights: Currently in Predevelopment
- Plans targeted for approval for single family detached lots
- Property to be cleared and graded
- Potential to amend product type
Greensburg Estates, Martinsburg, WV
31 single family lots over 70 acres; Investment, Partnering, Management.
Highlights: Development completed in 2020
- Plans for approval for single family detached lots
- Each Lot is cleared, graded and delivered to owner to construct their custom home
- Opportunity for remarkable access to amenities and shopping and country lifestyle
A complete reconstruction of a Single Family home. Investment Consulting, Project Management.
A single family residential development of 31 single family lots on 70 acres; JV opportunity to provide Investment Consulting and Project Management.
A single family residential development of 20 single family residential lots on 6 acres ; JV opportunity to provide Planning, Engineering and Project Management.
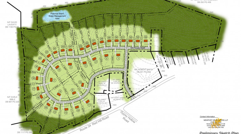
A single family residential development of 34 Single Family lots on 22 acres; Investment Consulting
services.








